高溫美標閘閥的結構設計與選擇
高溫
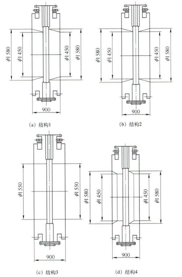
美標閘閥廣泛應用于工業領域,用于截斷高溫氣體介質。目前此類閥門廣泛應用的有四種口徑形式(如圖1所示)。針對不同流體通道結構的閥門,對其經過高溫熱風時的流態進行了分析,依此選擇對閥門中構件破壞 小的結構,延長閥門的使用壽命。
圖1 四種流體通道結構二維圖
根據模擬計算得出如下結論:
1、200mm開度時,四種結構沖刷速度排序(從大到小)依次為:結構1(89.4m/s)、結構3(79.7m/s)、結構2(76.5m/s)、結構4(72.9m/s)。因閥門從開啟到 打開時間很短(15-20s),因此流體通道結構對閥板下部的沖刷影響很小。
2、閥全開時,四種結構閥板下部的沖刷速度都很小,沖刷速度排序(從大到小)依次為:結構2(30m/s)、結構4(28m/s)、結構1(26m/s)、結構3(26m/s)。閥門在 打開后送風時間較長(45-60min),因此流體通道的結構對閥板下部沖刷的影響很大,直接影晌閥門的壽命。
3、在相同邊界條件下,流體通道結構對出口壓力影響不大。
4、在相同壓差下,三種結構流量大小排序(從大到小)依次為結構1、結構4、結構3。
綜合以上分析,流體通道結構1、3好于其他兩種結構,在高溫美標閘閥設計和生產中優先選擇。
上一篇新聞:美標鑄鋼法蘭閘閥和普通美標閘閥有什么不同?
下一篇新聞:電站調節閥的設計與制造
